Housing & Mental Health Care
DURBAN CBD, KZN, SOUTH AFRICA
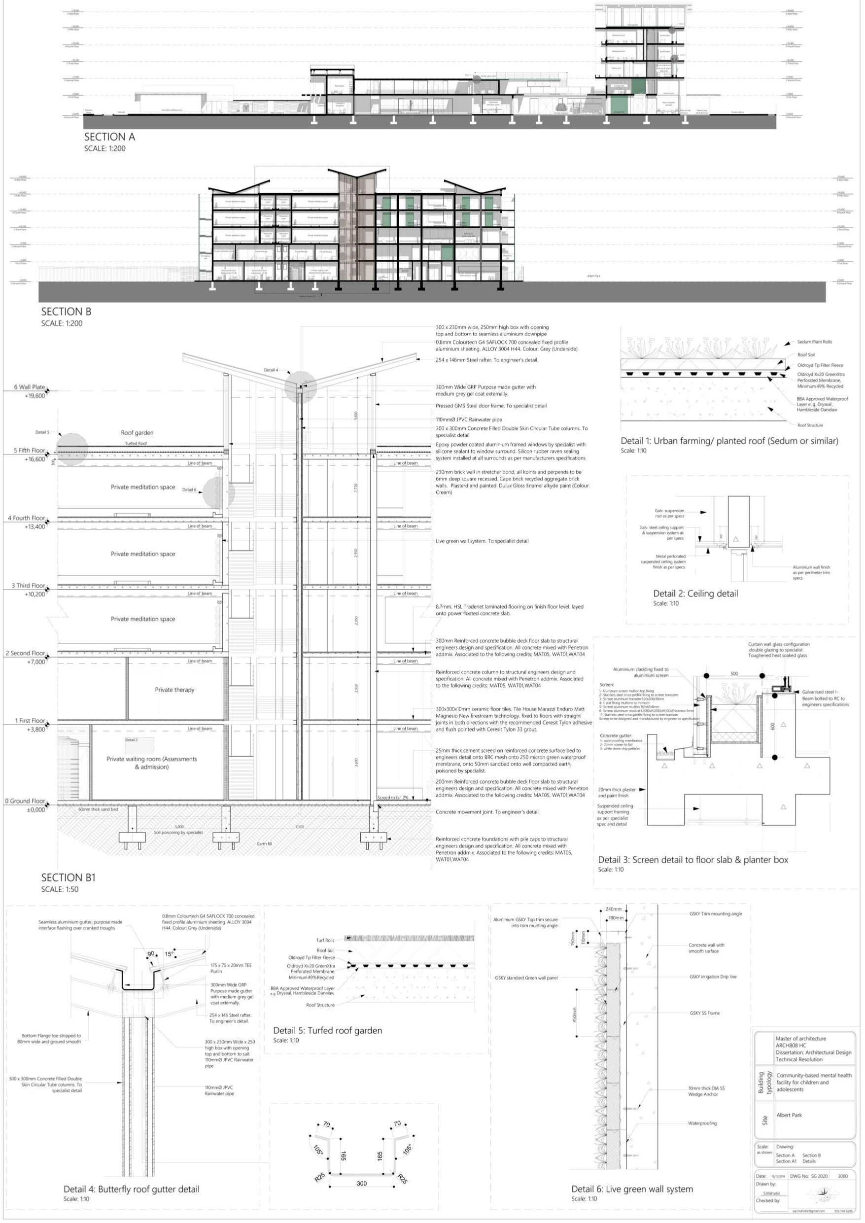
Master of Architecture (Thesis Project) explores the mental health care phenomenon in South Africa, with specific focus on children and adolescents in underprivileged communities. The research sets out to explore a de-institutionalized approach as an alternative response to the design of existing mental health facilities for the youth. In addition to discovering how they can be improved through a mixed-use housing facility that would engage with its community; as opposed to an isolated institutionalized facility. The primary objective being to demonstrate that a healing and therapeutic environment can be achieved within an urban setting, and has the potential to create more effective and long-term positive impacts on both the individual and community.
Project Information
Area:
–
Building Type:
Housing & infrastructure, Menta health care, Urban regeneration
Specs:
–
